Mieszkanie na sprzedaż Marki

5 pokoi
103.00 m²
8 398,06 zł/m2
1 piętro
DMD-MS-2430
Oblicz ratę kredytu

865 000 zł

Mieszkanie na sprzedaż
Nowa oferta

Szczegóły oferty

Symbol oferty DMD-MS-2430
Powierzchnia 103,00 m²
Powierzchnia użytkowa [m2] 111,00 m²
Liczba pokoi 5
Rodzaj budynku blok
Standard
Piętro 1
Liczba pięter w budynku 2
Garaż garaż
Stan lokalu Do wykończenia
Okna nowe PCV
Instalacje nowe
Balkon jest
Rok budowy 2025
Gaz brak
Woda ciepła - miejska
Dojazd asfalt
Otoczenie działki zabudowane
Ogrzewanie własne elektryczne
Umeblowanie puste
Odległość do komunikacji publicznej [m] 100 m
Usytuowanie dwustronne

Opis nieruchomości

INWESTYCYJNY HIT: przy ul. Dmowskiego w Markach! 

Szukasz nieruchomości, która od pierwszego dnia będzie na siebie zarabiać? A może chcesz mieszkać w mieszkaniu, a dwa mniejsze wynająć i spłacać nimi kredyt?

Przedstawiamy unikalną okazję inwestycyjną – cały poziom i poddasze w kameralnym, nowym segmencie (2025 r.), podzielone na 3 niezależne mieszkalne!

Dlaczego warto?

To nie jest zwykłe mieszkanie. To starannie zaprojektowany „gotowiec inwestycyjny” w stanie deweloperskim, zlokalizowany vis-à-vis Prima Parku w Markach.

W skład oferty wchodzą:

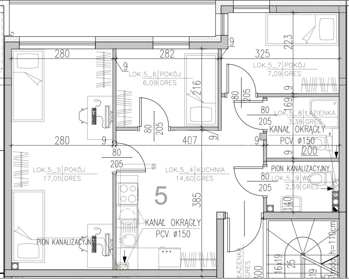
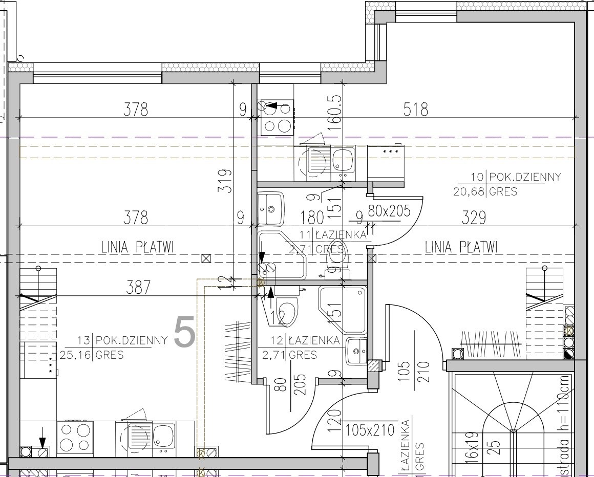
  1. Mieszkanie 3-pokojowy (52 m²) – idealny dla rodziny 

  2. Kawalerka A (27 m² + opcja antresoli 13 m²) – dzięki wysokim sufitom zyskujesz dodatkową przestrzeń (II piętro).

  3. Kawalerka B (24 m² + opcja antresoli 13 m²) – kompaktowa i funkcjonalna (II piętro).


Stan techniczny i atuty:

  • Nowe budownictwo: Lokal odebrany w 2025 roku – pachnie nowością!

  • Przygotowana infrastruktura: Każde mieszkanie posiada już wydzielone pomieszczenia (kuchnie, łazienki, sypialnie) oraz osobne liczniki.

  • Potencjał antresol: Wysokie sufity na drugim piętrze pozwalają zwiększyć powierzchnię użytkową o blisko 26 m²!

  • Koszty: Lokal bezczynszowy – niskie koszty utrzymania to wyższa stopa zwrotu (ROI).


Lokalizacja – Serce Marek:

Nieruchomość znajduje się przy ul. Dmowskiego, co gwarantuje błyskawiczny dostęp do infrastruktury:

  • Komunikacja miejska: Tylko 100 m do przystanku! Linie 140 i 738 dowiozą Cię do Metra Trocka w 30 minut.

  • Samochód: 10 min do zagłębia handlowego (M1, IKEA, Auchan), 25 min do Placu Bankowego w Warszawie.

  • Sąsiedztwo: Sklepy, usługi i punkty gastronomiczne w zasięgu wzroku (Prima Park).

Szczegóły transakcji:

  • Forma własności: Mieszkania na jednej księdze wieczystej (zakup jako jeden lokal).

  • Rynek: Wtórny (zakup od osoby prywatnej).

  • Dodatki: Dwa garaże – ogromny atut w tej lokalizacji.


Nie czekaj, aż ubiegnie Cię inny inwestor!
To idealna propozycja dla osób lokujących kapitał w nieruchomościach pod wynajem. 

Zapraszam do kontaktu i na prezentację!


Powyższa oferta ma charakter informacyjny i nie stanowi oferty handlowej w rozumieniu art. 66 §1 Kodeksu Cywilnego.

Lokalizacja nieruchomości

Kalkulatory

Kalkulator kredytowy

Wysokość raty

PLN
%

Kalkulator kosztów

Podatek od czynności cywilno-prawnych

Taksa notarialna
(opłata notarialna)

Wniosek o wpis do KW

VAT od prowizji
agencji nieruchomości

VAT od taksy notarialnej
(opłaty notarialnej)

Prowizja agencji nieruchomości

Wypisy aktu notarialnego

Razem

Uwaga: mogą wystąpić dodatkowe opłaty za założenie księgi wieczystej oraz ustanowienie hipoteki.

PLN
PLN
PLN
PLN
PLN
PLN
%
PLN

Agent

Proszę wprowadzić poprawne imię i nazwisko
Proszę wprowadzić poprawny numer telefonu
Proszę wprowadzić poprawny adres e-mail
Proszę zaznaczyć wymagane zgody
Rozwiąż równanie:
30 4
Niepoprawny wynik